
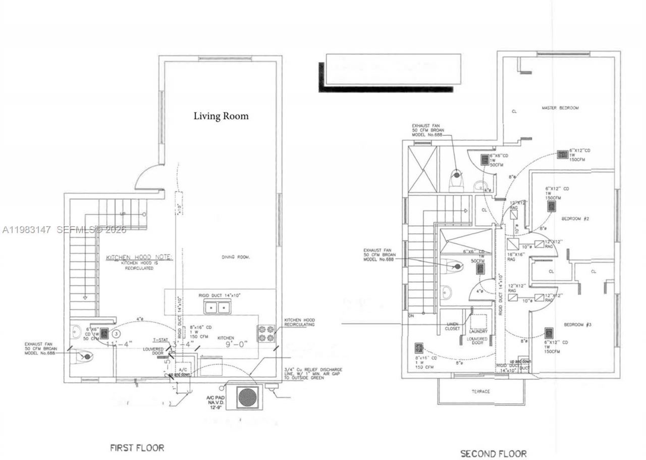
Discover this stunning 2026 brand-new construction in desirable Pompano Beach, 3 bedroom 2.5 bathrooms offering 1,650 square feet of beautifully designed living space. This modern residence welcomes you with an open-concept first floor featuring a spacious kitchen, inviting great room, convenient powder room, and sliding glass doors that lead to a private backyard?perfect for indoor-outdoor living and entertaining. Upstairs, youll find three bedrooms, two full bathrooms, and laundry room, though...Discover this stunning 2026 brand-new construction in desirable Pompano Beach, 3 bedroom 2.5 bathrooms offering 1,650 square feet of beautifully designed living space. This modern residence welcomes you with an open-concept first floor featuring a spacious kitchen, inviting great room, convenient powder room, and sliding glass doors that lead to a private backyard?perfect for indoor-outdoor living and entertaining. Upstairs, youll find three bedrooms, two full bathrooms, and laundry room, thoughtfully arranged for comfort and convenience. The contemporary kitchen is a true centerpiece, complete with stainless steel appliances, sleek cabinetry, and elegant quartz countertops. Throughout the home, stylish porcelain flooring adds a touch of sophistication and durability. Ideally located with easy access to I-95 and the Florida Turnpike, this home is just minutes from shopping, dining, scenic parks, and the beautiful beaches. With no association fees and everything brand new, this exceptional property is ready for you to move in and make it your own.
View MoreCourtesy of
Agency Name: FGI Realty
Agency Phone: 954-888-9610
Agent Name: Patricia Calderon
Presented by
Agent Name: Elizabeth Perez Team
Agent Phone: 305.984.6344
Agency Title: The Keyes Company
Request Info
Send an email with a link to
850 NW 18th Ave , Pompano Beach, FL 33069.
Email 850 NW 18th Ave , Pompano Beach, FL 33069
Thank you for your inquiry! As a thank you, we have a Special Mortgage Offer for You.
We would like to provide you a free, no-obligation, home loan pre-approval review.
Assistant District Sales Manager, Luxury & Commercial Specialist