
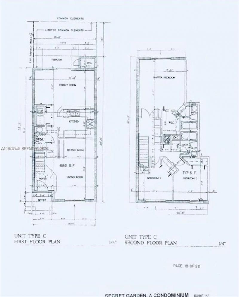
The Secret Garden Townhomes really are one of Miamis best-kept secrets. Attractive and well-maintained, 3 bedrooms and 3 baths and 2 parking spaces wit a fence patio with side entrance. they are tucked into the Fontainebleau neighborhood between Flagler & the Dolphin Expy, at the heart of Miami-Dade County. The showpiece entrance to Unit 1F welcomes you into a bright, airy gem in beautiful condition. Every room, created by a soft grey palette. Remodeled baths, stainless steel appliances & gorge...The Secret Garden Townhomes really are one of Miamis best-kept secrets. Attractive and well-maintained, 3 bedrooms and 3 baths and 2 parking spaces wit a fence patio with side entrance. they are tucked into the Fontainebleau neighborhood between Flagler & the Dolphin Expy, at the heart of Miami-Dade County. The showpiece entrance to Unit 1F welcomes you into a bright, airy gem in beautiful condition. Every room, created by a soft grey palette. Remodeled baths, stainless steel appliances & gorgeous tile & wood-like floors elevate the living experience. Fenced patio. Two parking space and guest spaces. This exceptional 3-bedroom, 2.5-bath townhome presents a rare opportunity, as residences in this enclave seldom become available and this is currently the only unit on the market. The property features a new roof installed in 2024, with the roof assessment fully paid by the owner, offering peace of mind for the next buyer. SELLER IS MOTIVATED Show Proof of funds or DU to purchase this excellent house.
View MoreCourtesy of
Agency Name: Miami Properties Investors, LLC
Agency Phone: 954-559-9988
Agent Name: Jesus Huarotte
Presented by
Agent Name: Elizabeth Perez Team
Agent Phone: 305.984.6344
Agency Title: The Keyes Company
Request Info
Send an email with a link to
8346 NW 10th St, Unit 1F, Miami, FL 33126.
Email 8346 NW 10th St, Unit 1F, Miami, FL 33126
Thank you for your inquiry! As a thank you, we have a Special Mortgage Offer for You.
We would like to provide you a free, no-obligation, home loan pre-approval review.
Assistant District Sales Manager, Luxury & Commercial Specialist