
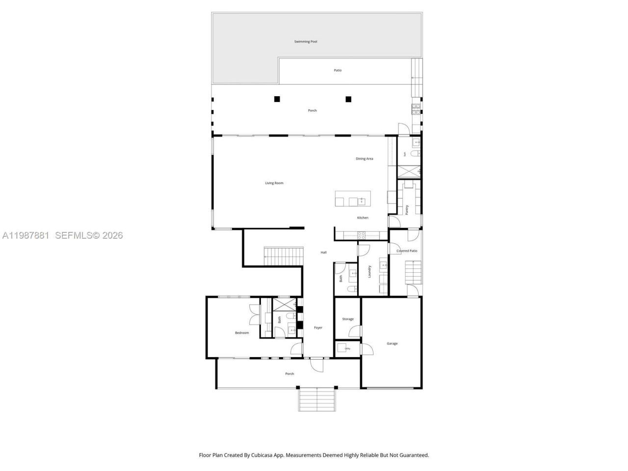
This isnt your typical new construction?this is a home designed to feel timeless from day one. Welcome to Majestic Oak Manor, a newly completed 2026 residence in gated Belle Meade offering 4,210 SF under air and over 6,998 SF of indoor-outdoor spaces, including terraces, patios, pool and garage. Intentionally designed to honor its setting, this residence blends refined modern living with a sense of permanence and architectural depth rarely found in new construction. Enter through a sprawling cov...This isnt your typical new construction?this is a home designed to feel timeless from day one. Welcome to Majestic Oak Manor, a newly completed 2026 residence in gated Belle Meade offering 4,210 SF under air and over 6,998 SF of indoor-outdoor spaces, including terraces, patios, pool and garage. Intentionally designed to honor its setting, this residence blends refined modern living with a sense of permanence and architectural depth rarely found in new construction. Enter through a sprawling covered front porch, framed by a relocated 100-year old majestic oak, into a dramatic entry vestibule defined by a floating ceiling and curated designer lighting?an arrival that is both striking and serene. The home features five en-suite bedrooms, including a stunning primary suite with spa-style wet room, soaking tub, dual showers, expansive walk-in closet and terrace. A chefs kitchen with Fisher & Paykel appliances, an oversized island, and a generous walk-in pantry anchors grand yet inviting living spaces that unfold through a full wall of glass to a covered terrace with outdoor kitchen, dining, and lounge areas. A 52-ft resort-style pool?among the largest in Belle Meade?anchors the lush, tropical private grounds. Elevated above the FEMA flood line and finished with 8-foot trim-less doors, floating walls, a garage with lift, A/C storage, guest powder room, and full cabana bath. A rare offering where design, scale, and soul converge?Majestic Oak Manor stands in a class of its own.
View MoreCourtesy of
Agency Name: Graber Realty Group LLC
Agency Phone: 786-362-5672
Agent Name: Shane Graber
Presented by
Agent Name: Elizabeth Perez Team
Agent Phone: 305.984.6344
Agency Title: The Keyes Company
Request Info
Send an email with a link to
769 NE 72nd Ter , Miami, FL 33138.
Email 769 NE 72nd Ter , Miami, FL 33138
Thank you for your inquiry! As a thank you, we have a Special Mortgage Offer for You.
We would like to provide you a free, no-obligation, home loan pre-approval review.
Assistant District Sales Manager, Luxury & Commercial Specialist