
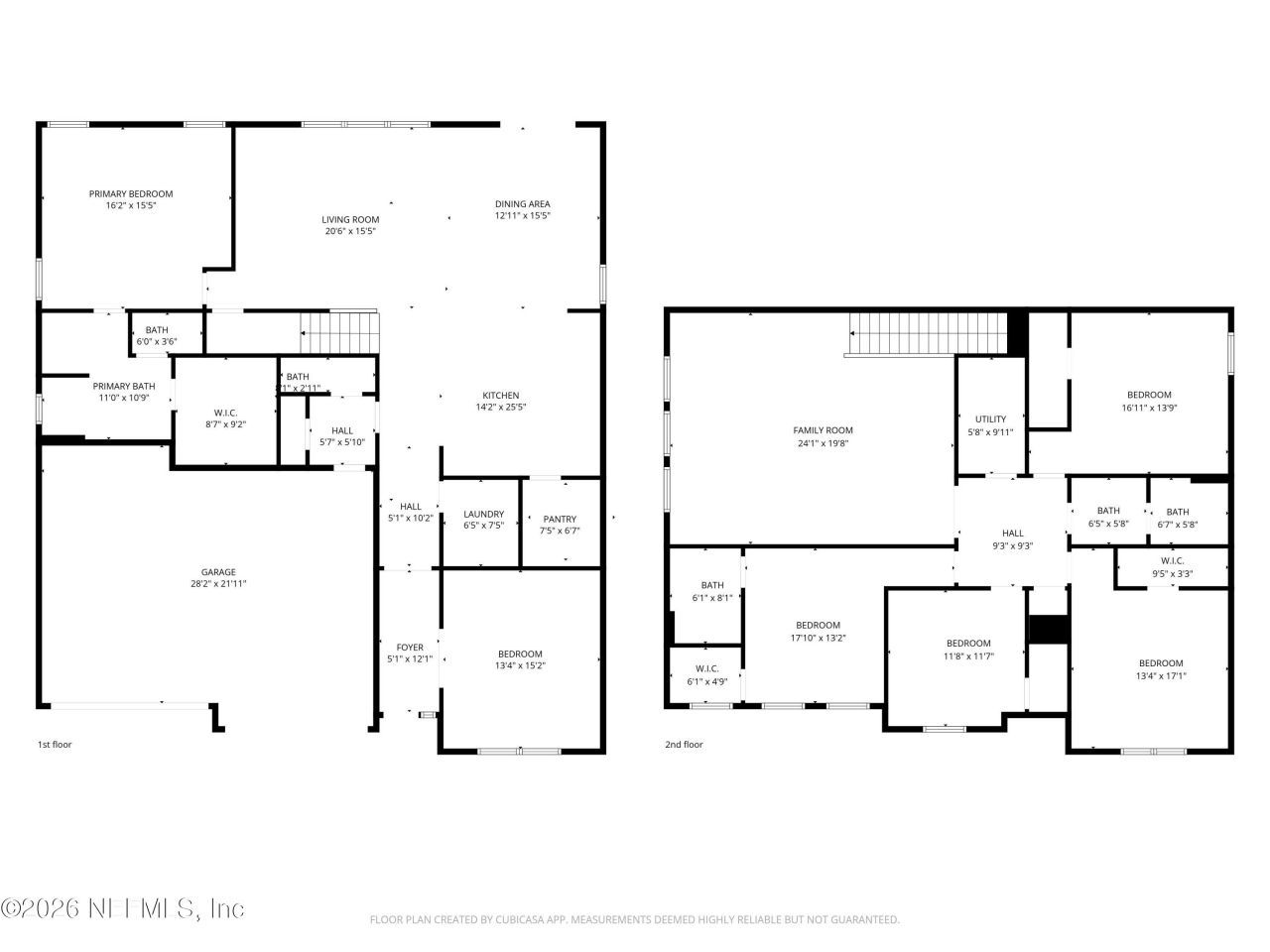
Welcome to 59 Lochnagar Mountain Dr, in the Aberdeen Community and top-rated school district.This home offers over 3,500 sq. ft. of living space, featuring 5 bedrooms, 3.5 bathrooms, a first-floor enclosed office, and a spacious loft/bonus area upstairs.The first floor showcases transition-free LVP flooring, creating a seamless look throughout. The renovated custom kitchen features new cabinets, quartz countertops, new appliances, a custom pantry, and a custom laundry room-perfect for daily livi...Welcome to 59 Lochnagar Mountain Dr, in the Aberdeen Community and top-rated school district.This home offers over 3,500 sq. ft. of living space, featuring 5 bedrooms, 3.5 bathrooms, a first-floor enclosed office, and a spacious loft/bonus area upstairs.The first floor showcases transition-free LVP flooring, creating a seamless look throughout. The renovated custom kitchen features new cabinets, quartz countertops, new appliances, a custom pantry, and a custom laundry room-perfect for daily living and entertaining.Upstairs, you'll find four generously sized bedrooms and two full bathrooms.Outside, the oversized driveway and 3-car garage offer ample room for play and storage. The private, screened lanai and fenced backyard make this home ideal.2 miles to FCA (K-8)2.7 miles to Bartram Trail HS32 min to Mickler's Beach43 min to Jax Airport38 min to St. AugThis home combines thoughtful upgrades, functional living spaces, and a prime location--perfect for modern family life!
View MoreCourtesy of
Agency Name: BERKSHIRE HATHAWAY HOMESERVICES FLORIDA NETWORK REALTY
Agent Name: AGNIESZKA BIRCHENOUGH
Presented by
Agent Name: Elizabeth Perez Team
Agent Phone: 305.984.6344
Agency Title: The Keyes Company
Request Info
Send an email with a link to
59 Lochnagar Mountain Drive, Saint Johns, FL 32259.
Email 59 Lochnagar Mountain Drive, Saint Johns, FL 32259
Thank you for your inquiry! As a thank you, we have a Special Mortgage Offer for You.
We would like to provide you a free, no-obligation, home loan pre-approval review.
Assistant District Sales Manager, Luxury & Commercial Specialist