
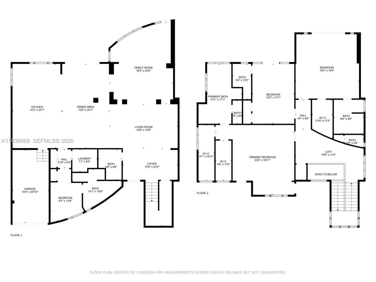
NORTH BAY ROAD | DESIGNER-READY RENOVATION OPPORTUNITYExceptional value for a modern residence extensively rebuilt and expanded in 2008 with permits, offering the scale, layout, and systems consistent with newer construction. Located on one of Miami Beachs most prestigious corridors, this high-volume home features open-concept living, 10ft ceilings, and strong underlying infrastructure.The property is being offered as a renovation opportunity and will require updates to flooring, kitchen, bathro...NORTH BAY ROAD | DESIGNER-READY RENOVATION OPPORTUNITYExceptional value for a modern residence extensively rebuilt and expanded in 2008 with permits, offering the scale, layout, and systems consistent with newer construction. Located on one of Miami Beachs most prestigious corridors, this high-volume home features open-concept living, 10ft ceilings, and strong underlying infrastructure.The property is being offered as a renovation opportunity and will require updates to flooring, kitchen, bathrooms, and overall finishes, allowing a new owner to design and customize to their taste while leveraging the existing structural improvements. Key improvements include a newer roof (2022), elevated base construction, impact windows throughout, and updated core systems ? allowing future enhancements to focus primarily on design and finishes rather than major structural work.Oversized pool and generous grounds provide excellent potential for outdoor living and entertaining. Ideal for end-users, developers, or investors seeking a strategic value-add opportunity with a clear path to repositioning within the upper tier of North Bay Road valuations.
View MoreCourtesy of
Agency Name: The McClain Group Inc
Agency Phone: 786-234-3673
Agent Name: William McClain Jr.
Presented by
Agent Name: Elizabeth Perez Team
Agent Phone: 305.984.6344
Agency Title: The Keyes Company
Request Info
Send an email with a link to
5625 N Bay Rd, Miami Beach, FL 33140.
Email 5625 N Bay Rd, Miami Beach, FL 33140
Thank you for your inquiry! As a thank you, we have a Special Mortgage Offer for You.
We would like to provide you a free, no-obligation, home loan pre-approval review.
Assistant District Sales Manager, Luxury & Commercial Specialist