
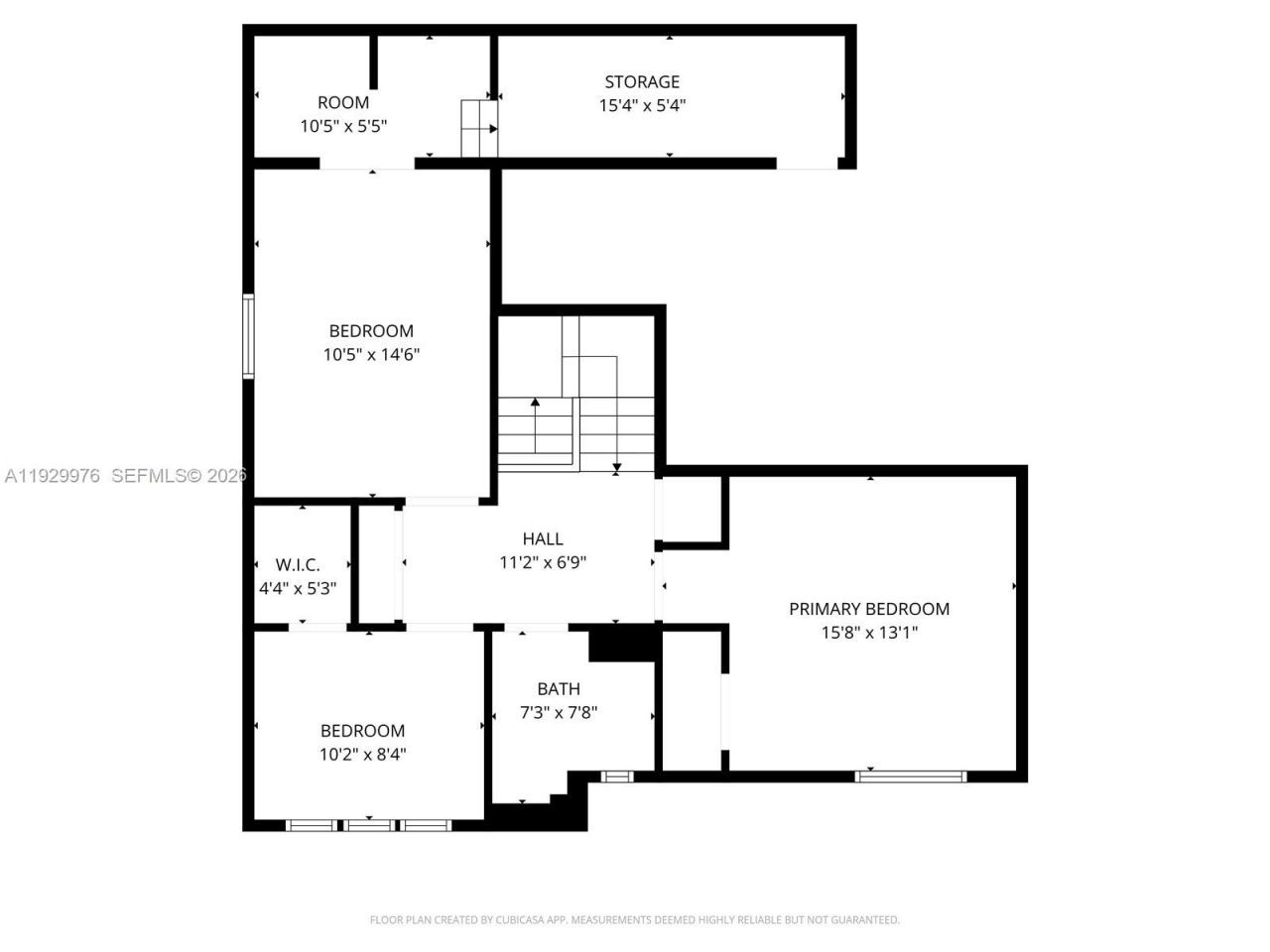
512 SW 21st Ave offers a rare dual-use opportunity in Little Havana: renovate the existing single-family home plus detached efficiency, or redevelop the 10,000 SF corner lot under Miami 21 to build 8 units. The main 2-story 1926 home needs interior updates, allowing a value-add investor or homeowner to create significant equity. The second structure functions as an efficiency with its own bathroom?ideal for rental income or guest use. Developers can build 8 units by right under T4-R. The lots 10...512 SW 21st Ave offers a rare dual-use opportunity in Little Havana: renovate the existing single-family home plus detached efficiency, or redevelop the 10,000 SF corner lot under Miami 21 to build 8 units. The main 2-story 1926 home needs interior updates, allowing a value-add investor or homeowner to create significant equity. The second structure functions as an efficiency with its own bathroom?ideal for rental income or guest use. Developers can build 8 units by right under T4-R. The lots 100 x 100 layout allows excellent design flexibility for townhomes or boutique multifamily. Investors can renovate both buildings for dual income while holding the land for future development. With strong rental demand and proximity to Brickell, Coral Gables, and the Civic Center, this property offers versatility, appreciation potential, and long-term value in one of Miamis most resilient neighborhoods.
View MoreCourtesy of
Agency Name: Synergy Realty Advisors
Agency Phone: 786-536-7287
Agent Name: Gabriel Rodriguez
Presented by
Agent Name: Elizabeth Perez Team
Agent Phone: 305.984.6344
Agency Title: The Keyes Company
Request Info
Send an email with a link to
512 SW 21st Ave, Miami, FL 33135.
Email 512 SW 21st Ave, Miami, FL 33135
Thank you for your inquiry! As a thank you, we have a Special Mortgage Offer for You.
We would like to provide you a free, no-obligation, home loan pre-approval review.
Assistant District Sales Manager, Luxury & Commercial Specialist