
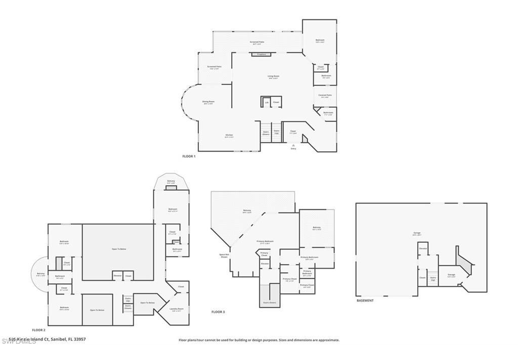
Imagine living on Sanibel Island... within an island.Welcome to Kinzie Island, a rare gated enclave on Sanibel's desirable East End, where privacy, resort-style amenities, and timeless island charm create the ultimate coastal retreat.This fully reimagined residence has undergone a top-to-bottom renovation, offering peace of mind and modern coastal elegance throughout. The home features new insulation, drywall, interior paint, engineered French oak flooring, recessed LED lighting, new doors, trim...Imagine living on Sanibel Island... within an island.Welcome to Kinzie Island, a rare gated enclave on Sanibel's desirable East End, where privacy, resort-style amenities, and timeless island charm create the ultimate coastal retreat.This fully reimagined residence has undergone a top-to-bottom renovation, offering peace of mind and modern coastal elegance throughout. The home features new insulation, drywall, interior paint, engineered French oak flooring, recessed LED lighting, new doors, trim, and baseboards, along with upgraded electrical, plumbing, and mechanical systems.The chef's kitchen is a showstopper-completely redesigned with custom soft-close cabinetry, quartz countertops, subway/mosaic backsplash, a large island, and all-new stainless steel appliances, including a 48 induction range. The layout was thoughtfully reconfigured to enhance flow and function, ideal for entertaining or everyday island living.Each bathroom has been beautifully updated, including a luxurious primary suite with custom tile wet-room shower, glass enclosure, freestanding soaking tub, rain shower, double vanity, and upgraded fixtures. Guest baths and the powder room feature new vanities, tile surrounds, flooring, lighting, and modern finishes throughout.Behind the scenes, no detail was overlooked: three new high-efficiency HVAC systems, smart thermostats, new ductwork, upgraded electrical panels and sub-panels, impact windows and doors, standing-seam metal roof, new gutters, and refreshed plumbing with PEX-all designed for efficiency, durability, and comfort.Outdoors, enjoy fresh landscaping, new sod and plantings, repaired irrigation, exterior lighting, new screening and railings, and a beautifully refreshed exterior. The garage includes epoxy flooring, impact garage doors with smart openers, flood vents, and a bonus room with slider-perfect for a studio, gym, or flex space.Island charm defines life here. Enjoy peaceful beach walks, world-class shelling, boating adventures, and island living at its best. Take in beautiful views of the Gulf, savor relaxing morning sunrises, and unwind beneath spectacular evening sunset skies-the essence of the Sanibel lifestyle.This home is ideally suited for full-time or retirement living, while effortlessly accommodating family gatherings and visiting friends-offering comfort, privacy, and refined luxury for every occasion.Kinzie Island amenities are unmatched for such an intimate community: Boat dockage Resort-style pool with lap area Pickleball & tennis courts Shuffleboard & bocce ball courts Beach storage Secure, gated entryAll just a short distance to the beach, and moments from Sanibel's shopping, dining, bike paths, and natural beauty.A rare opportunity to own in one of Sanibel's few gated communities-an island within an island-where luxury, lifestyle, and location meet.
View MoreCourtesy of
Agency Name: Kingfisher Real Estate, Inc.
Agency Phone: 239-472-4411
Agent Name: Mary Bondurant
Presented by
Agent Name: Elizabeth Perez Team
Agent Phone: 305.984.6344
Agency Title: The Keyes Company
Request Info
Send an email with a link to
505 Kinzie Island Ct, Sanibel, FL 33957.
Email 505 Kinzie Island Ct, Sanibel, FL 33957
Thank you for your inquiry! As a thank you, we have a Special Mortgage Offer for You.
We would like to provide you a free, no-obligation, home loan pre-approval review.
Assistant District Sales Manager, Luxury & Commercial Specialist