
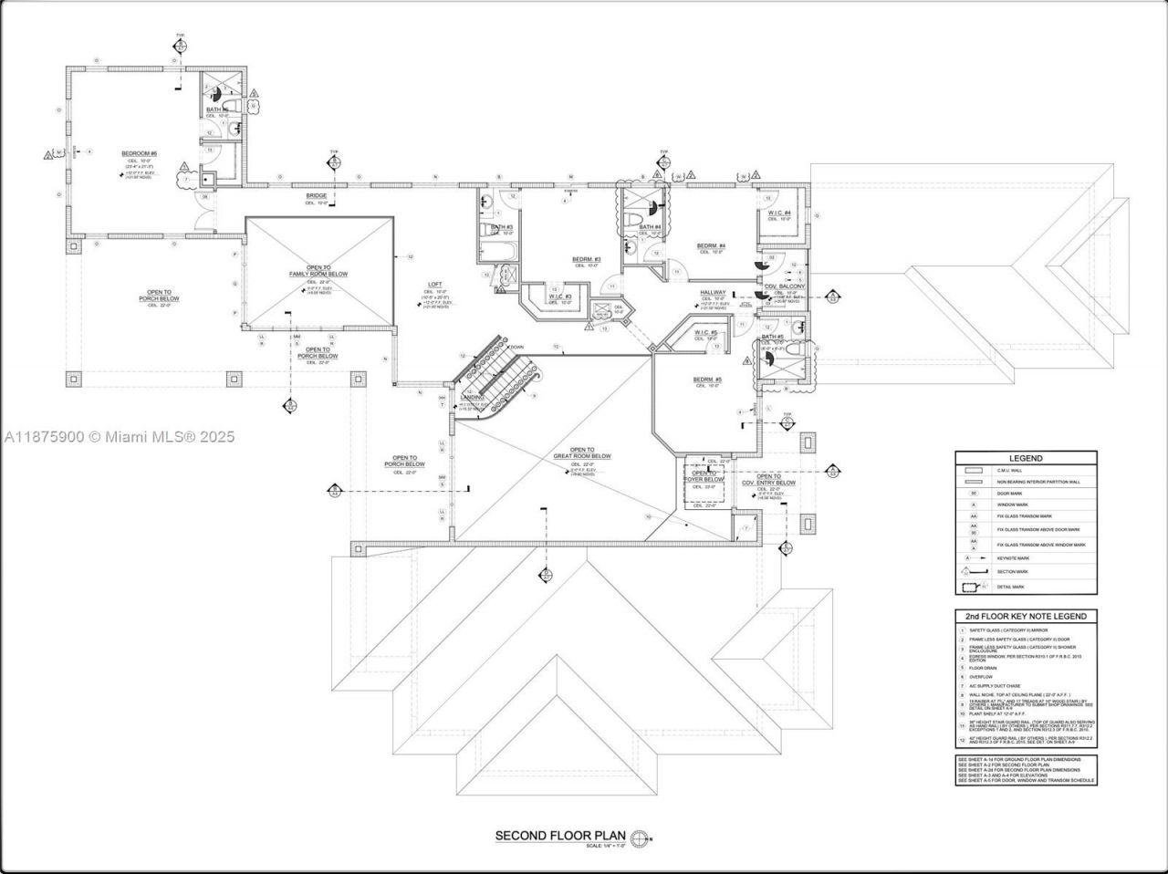
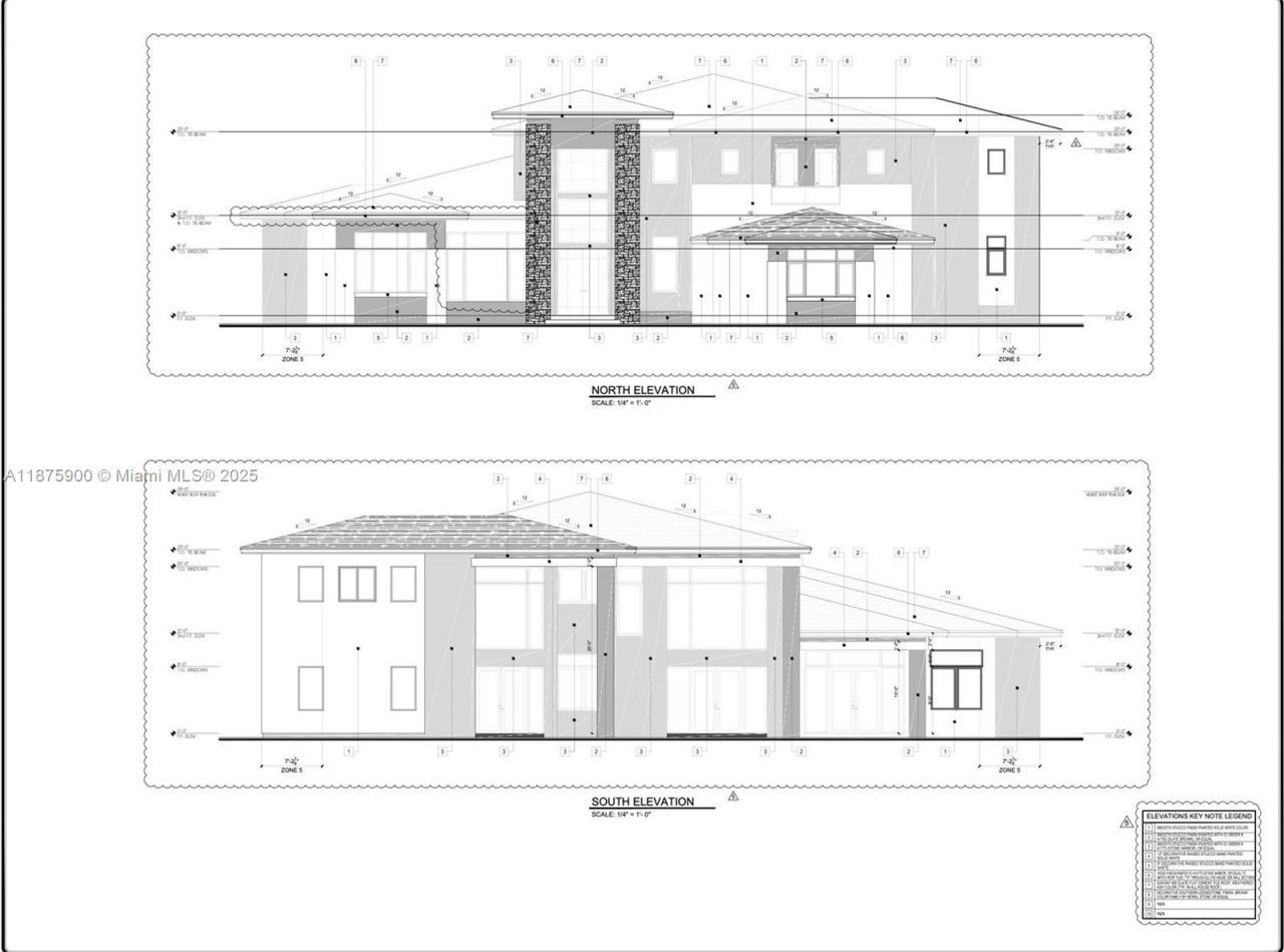
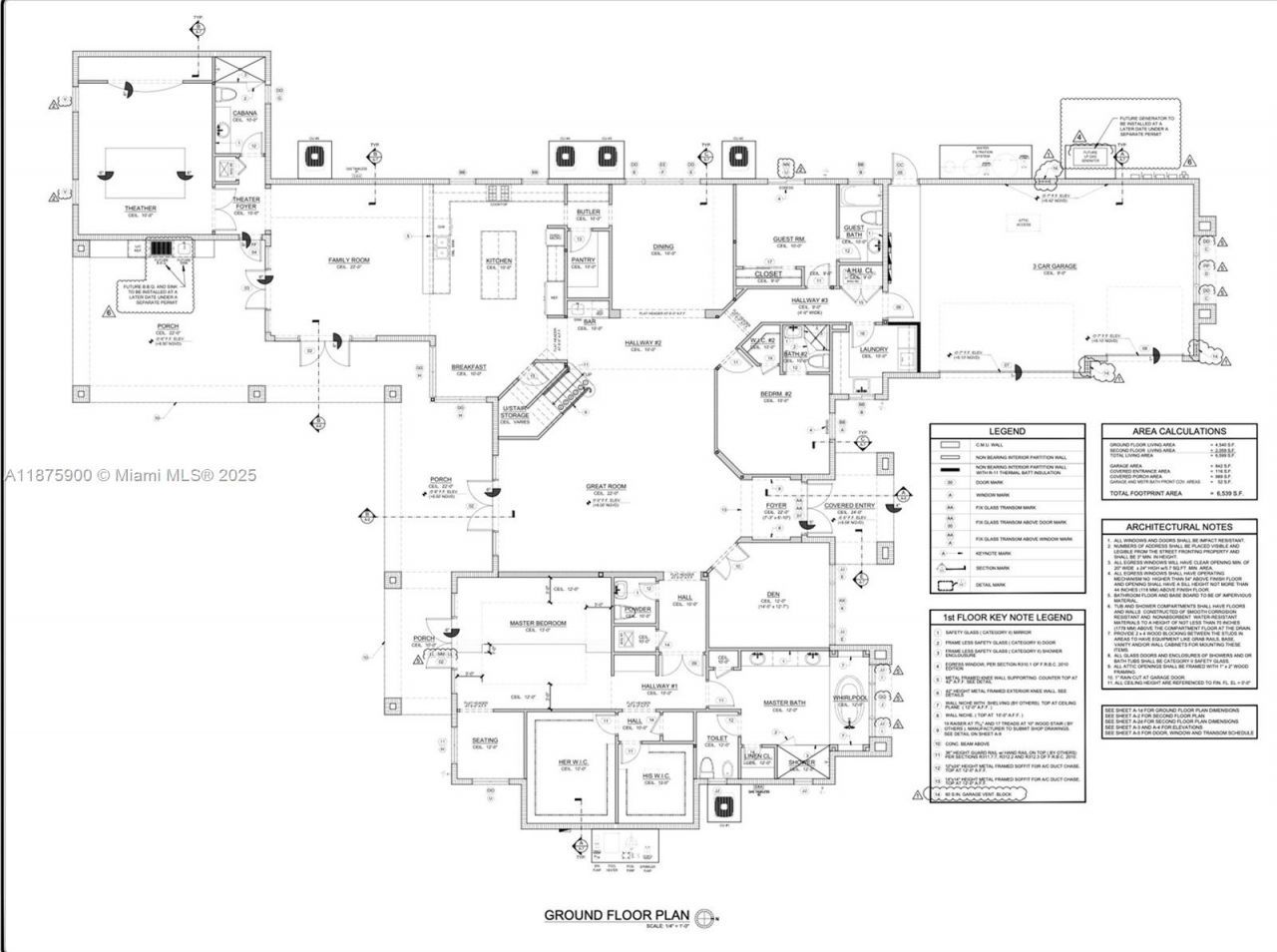
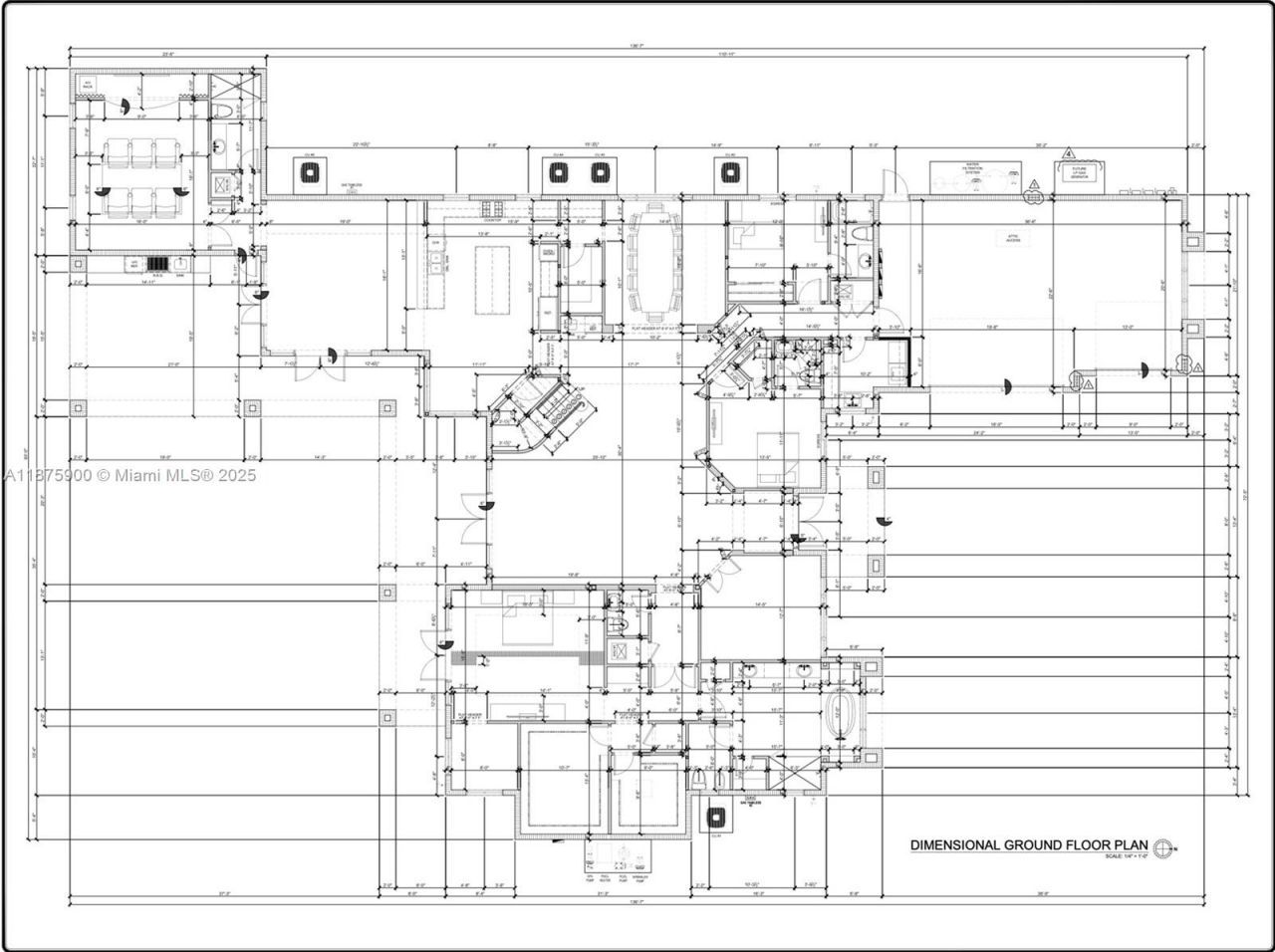
Vacant Land with Burned property on site. Permit approved by city for 6500sf house and 6000sf garage, total 12500sf. Prime opportunity in the heart of Southwest Ranches! This ~2-acre corner lot on Griffin Rd and 126th Ave offersendless potential for a luxury estate or equestrian retreat. City-approved plans are in place for a stunning 6500 sqft two-story residence plus a 6,000 sq ft garage/storage structure. The property includes lake access and anexisting fire-damaged structure, allowing for ea...Vacant Land with Burned property on site. Permit approved by city for 6500sf house and 6000sf garage, total 12500sf. Prime opportunity in the heart of Southwest Ranches! This ~2-acre corner lot on Griffin Rd and 126th Ave offersendless potential for a luxury estate or equestrian retreat. City-approved plans are in place for a stunning 6500 sqft two-story residence plus a 6,000 sq ft garage/storage structure. The property includes lake access and anexisting fire-damaged structure, allowing for easier permitting or redevelopment. Located in sought-after SunshineRanches, this parcel combines rural charm with close proximity to major highways, shopping, dining, and topschools. Rarely available land with approved plans makes this a unique investment and lifestyle opportunity in oneof Broward Countys most desirable communities.
View MoreCourtesy of
Agency Name: KWG Realty Group LLC
Agency Phone: 954-980-6666
Agent Name: Rongjie Sun
Presented by
Agent Name: Elizabeth Perez Team
Agent Phone: 305.984.6344
Agency Title: The Keyes Company
Request Info
Send an email with a link to
4650 SW 126th Ave, Southwest Ranches, FL 33330.
Email 4650 SW 126th Ave, Southwest Ranches, FL 33330
Thank you for your inquiry! As a thank you, we have a Special Mortgage Offer for You.
We would like to provide you a free, no-obligation, home loan pre-approval review.
Assistant District Sales Manager, Luxury & Commercial Specialist