
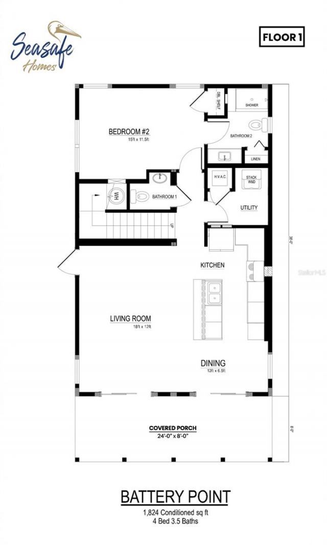
Pre-Construction. To be built. Coastal Resilience Meets Modern Luxury in GulfportExperience the future of coastal living with the Battery Point Model by Seasafe Homes. Specifically engineered for Gulfport's waterfront environment, this new construction masterpiece combines high-end design with unmatched structural integrity.While traditional coastal builds can be a gamble, the Battery Point is a sure bet. Engineered for 180 MPH sustained winds, this home features a robust 2x10 floor system and 2...Pre-Construction. To be built. Coastal Resilience Meets Modern Luxury in GulfportExperience the future of coastal living with the Battery Point Model by Seasafe Homes. Specifically engineered for Gulfport's waterfront environment, this new construction masterpiece combines high-end design with unmatched structural integrity.While traditional coastal builds can be a gamble, the Battery Point is a sure bet. Engineered for 180 MPH sustained winds, this home features a robust 2x10 floor system and 2x6 exterior walls reinforced with a continuous load path from roof to foundation.Flood-Ready Design: Elevated construction with deep-anchored pilings and FEMA-compliant design.Storm-Proofed: Impact-rated windows and doors come standard, providing peace of mind and significantly lower insurance premiums.Exceptional Interior & LayoutSpanning 1,824 square feet of conditioned living space, this 4-bedroom, 3.5-bathroom home is designed for the modern Florida lifestyle.Chef's Dream: An open-concept kitchen featuring a walk-in pantry, extended bar seating, and seamless flow into the airy living and dining areas.Master Retreat: The primary suite offers private access to a covered porch, dual walk-in closets, and a spa-like bathroom with a walk-in shower.Indoor-Outdoor Living: Expansive covered porches invite breezes from Boca Ciega Bay and extend your entertaining space year-round.Accessibility: An optional elevator can be integrated for effortless multi-level living.The Seasafe Advantage:Why wait two years for a traditional builder? Using an innovative Two-Site Construction process, your home is built in a climate-controlled center while site work begins in Gulfport.Speed: Move-in ready approximately 6 months from permit approval-up to much faster than traditional builds.Curated Customization: Choose from high-end interior and exterior finishes (cabinets, flooring, roofing, and more) through a streamlined selection process that eliminates decision fatigue without sacrificing your personal style.Ready to build your resilient Gulfport sanctuary? Reach out today to start your journey to Easy Living. Renderings show some upgrade features.
View MoreCourtesy of
Agency Name: AXEN REALTY, LLC
Agency Contact: 818-932-8800
Agent Name: Zyon Christante
Presented by
Agent Name: Elizabeth Perez Team
Agent Phone: 305.984.6344
Agency Title: The Keyes Company
Request Info
Send an email with a link to
3020 Clinton Street S, Gulfport, FL 33707.
Email 3020 Clinton Street S, Gulfport, FL 33707
Thank you for your inquiry! As a thank you, we have a Special Mortgage Offer for You.
We would like to provide you a free, no-obligation, home loan pre-approval review.
Assistant District Sales Manager, Luxury & Commercial Specialist