
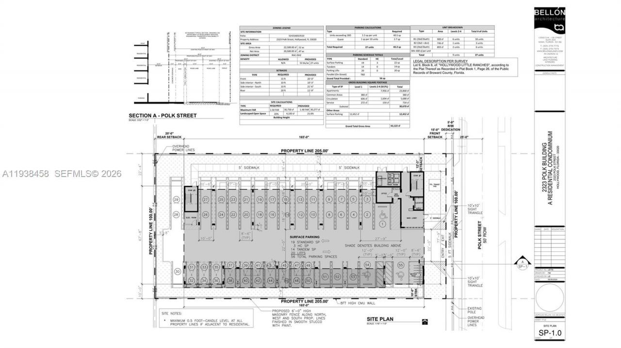
Just Listed. Exceptional development opportunity at 2323 Polk Street, Hollywood, FL. Approved plans for a 4-story, 27-unit multifamily project located within the Regional Activity Center (DH-2 zoning), with the owner approximately two months away from obtaining the building permit. The project is thoughtfully designed for efficiency, featuring mostly 2BR/2BA units and 56 total parking spaces, including standard, ADA, tandem, and mechanical lifts?an uncommon advantage in the submarket. The area i...Just Listed. Exceptional development opportunity at 2323 Polk Street, Hollywood, FL. Approved plans for a 4-story, 27-unit multifamily project located within the Regional Activity Center (DH-2 zoning), with the owner approximately two months away from obtaining the building permit. The project is thoughtfully designed for efficiency, featuring mostly 2BR/2BA units and 56 total parking spaces, including standard, ADA, tandem, and mechanical lifts?an uncommon advantage in the submarket. The area is predominantly rental-focused, creating a rare opportunity for a condo-oriented or ownership-ready product. Ideal for developers or builders avoiding the time and cost of entitlements. Offering Memorandum available; plans and additional documentation upon request.
View MoreCourtesy of
Agency Name: Soar Realty Corp
Agency Phone: 786-667-8770
Agent Name: Juan Suarez
Presented by
Agent Name: Elizabeth Perez Team
Agent Phone: 305.984.6344
Agency Title: The Keyes Company
Request Info
Send an email with a link to
2323 Polk St , Hollywood, FL 33020.
Email 2323 Polk St , Hollywood, FL 33020
Thank you for your inquiry! As a thank you, we have a Special Mortgage Offer for You.
We would like to provide you a free, no-obligation, home loan pre-approval review.
Assistant District Sales Manager, Luxury & Commercial Specialist