
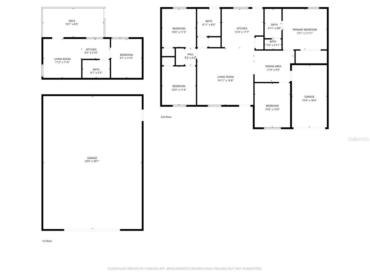
'These are the days you have been waiting for.2023 POOL HOME | 40' x 30' METAL SHOP | RV CARPORT WITH 50 amp RV HOOKUP | GORGEOUS ADU | 10 ACRES | OLD FLORIDA VIBES, AND JUST THE RIGHT AMOUNT OF COUNTRY LIVING TO MAKE YOU NEVER WANT TO LEAVE.Built in 2023, this 4-bedroom, 2-bath home sits on a beautiful 10-acre property that truly gives you room to breathe. Step inside to a bright, welcoming living room with the kitchen tucked toward the back-keeping the space open while still feeling intentiona...'These are the days you have been waiting for.2023 POOL HOME | 40' x 30' METAL SHOP | RV CARPORT WITH 50 amp RV HOOKUP | GORGEOUS ADU | 10 ACRES | OLD FLORIDA VIBES, AND JUST THE RIGHT AMOUNT OF COUNTRY LIVING TO MAKE YOU NEVER WANT TO LEAVE.Built in 2023, this 4-bedroom, 2-bath home sits on a beautiful 10-acre property that truly gives you room to breathe. Step inside to a bright, welcoming living room with the kitchen tucked toward the back-keeping the space open while still feeling intentionally defined. The layout is thoughtfully split, with two bedrooms and a full bath just off the living room, while the dining area leads to the primary suite and an additional bedroom. An extra bonus is the partially insulated garage with AC unit, ready to be used as a flex room!OUT BACK IS WHERE THIS PROPERTY REALLY BECOMES SOMETHING SPECIAL. An in-ground pool sets the stage for entertaining, relaxing, and everything in between-whether that means hosting friends, gathering around the fire pit, or simply enjoying the quiet.AND THEN THERE IS THE VIEW-THE TRUE HIGHLIGHT. THE BACK FIVE ACRES OPEN UP TO A SERENE LAKE AND WETLAND SETTING, OFFERING A PEACEFUL, NATURAL BACKDROP THAT CAPTURES THE ESSENCE OF OLD FLORIDA AT ITS BEST. IT IS PRIVATE, CALMING, AND SOMETHING YOU WILL APPRECIATE EVERY SINGLE DAY.The bonus features only add to the appeal. A fully equipped ADU offers 1 bedroom, 1 bath, its own kitchen, living space, and a wooden deck-ideal for guests, extended family, or rental income. Just beside it, a detached garage provides ample room for storage, equipment, or a workshop setup, along with an additional laundry space dedicated to the ADU. The attached RV carport makes it easy to bring all your toys and still have room to spare.IF YOU HAVE BEEN SEARCHING FOR SOMETHING NEWER, WITH LAND, A POOL, FUNCTIONAL OUTBUILDINGS, AND A SETTING THAT FEELS LIKE A TRUE ESCAPE-THIS IS IT.
View MoreCourtesy of
Agency Name: BEE REALTY CORP
Agency Contact: 386-279-7522
Agent Name: Bee Powell
Presented by
Agent Name: Elizabeth Perez Team
Agent Phone: 305.984.6344
Agency Title: The Keyes Company
Request Info
Send an email with a link to
2110 E Kicklighter Road, Lake Helen, FL 32744.
Email 2110 E Kicklighter Road, Lake Helen, FL 32744
Thank you for your inquiry! As a thank you, we have a Special Mortgage Offer for You.
We would like to provide you a free, no-obligation, home loan pre-approval review.
Assistant District Sales Manager, Luxury & Commercial Specialist