
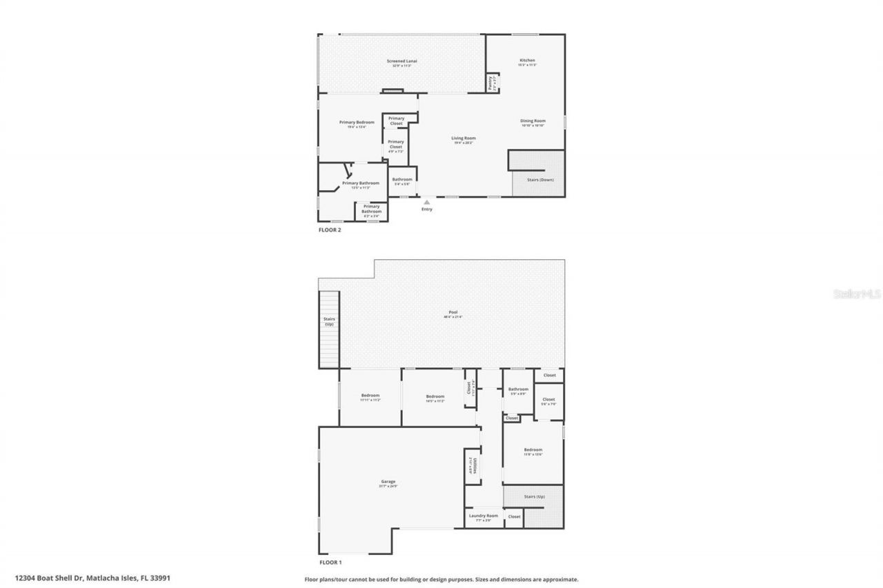
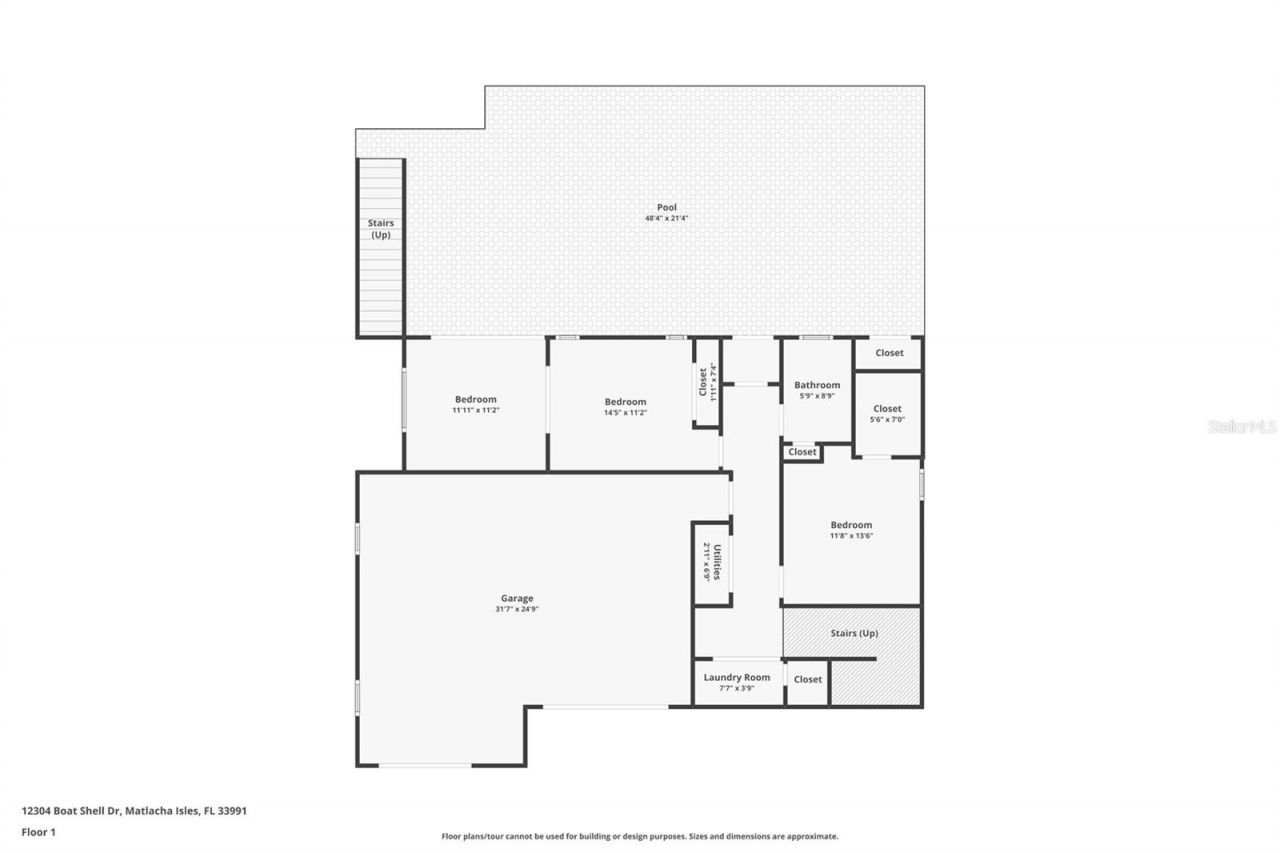
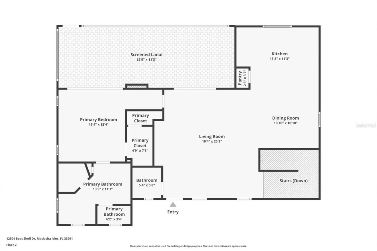
Under contract-accepting backup offers. Discover a true waterfront escape in unincorporated Matlacha Isles where quiet island living, direct Gulf access, and modern hurricane-built construction come together in one rare property. Built in 2015 to updated Florida hurricane codes, this home has already proven its strength-two of the most significant hurricanes in state history impacted the area during ownership, and there was no flooding in either storm, with only minor siding damage on the west s...Under contract-accepting backup offers. Discover a true waterfront escape in unincorporated Matlacha Isles where quiet island living, direct Gulf access, and modern hurricane-built construction come together in one rare property. Built in 2015 to updated Florida hurricane codes, this home has already proven its strength-two of the most significant hurricanes in state history impacted the area during ownership, and there was no flooding in either storm, with only minor siding damage on the west side while the rest of the home held strong. The property sits on a deep, wide canal with no bridges, offering fast boating access to Matlacha Pass, Cayo Costa, Boca Grande, Pine Island Sound, and some of Southwest Florida's best fishing waters. Major waterfront improvements provide long-term peace of mind, including a fully rebuilt seawall (significant investment), reinforced dock, fully serviced boat lift with updated gears and electrical, and a brand-new $7,000 canopy. Both front and rear steps were rebuilt with updated railings, enhancing durability and curb appeal. A heated pool allows year-round enjoyment, supported by a newer pool heater and automatic-fill system for easy maintenance. Inside, natural light fills the open layout with relaxing canal views from the main living spaces, creating ideal indoor-outdoor flow for entertaining, seasonal living, or full-time residence. Located in unincorporated Matlacha Isles, owners enjoy fewer municipal restrictions while being minutes from the colorful Matlacha arts district, waterfront dining, kayaking routes, and the surrounding aquatic preserves. This is a rare opportunity to own a post-2015 built, storm-resilient, Gulf-access waterfront home in one of Southwest Florida's most distinctive boating communities.
View MoreCourtesy of
Agency Name: EPIQUE REALTY, INC.
Agency Contact: FLBroker@EpiqueRealty.com
Agent Name: Francis Glaab, PA
Presented by
Agent Name: Elizabeth Perez Team
Agent Phone: 305.984.6344
Agency Title: The Keyes Company
Request Info
Send an email with a link to
12304 Boat Shell Drive, Matlacha Isles, FL 33991.
Email 12304 Boat Shell Drive, Matlacha Isles, FL 33991
Thank you for your inquiry! As a thank you, we have a Special Mortgage Offer for You.
We would like to provide you a free, no-obligation, home loan pre-approval review.
Assistant District Sales Manager, Luxury & Commercial Specialist